Propiété
Propiété
1780 Rue Notre-Dame-de-Fatima #508
Appartement | MLS: 25704070
529 900 $
Description
Penthouse lumineux au dernier étage avec 2 chambres, 2 salles de bain (dont une attenante), cuisine et salle de bain rénovées en 2023 avec matériaux haut de gamme. Très grande terrasse privée avec spa, 2 stationnements (intérieur + extérieur), 2 rangements. À 10 min du Carrefour Laval, du métro Concorde/Cartier et près des autoroutes 19 et St-Martin. Clé en main!
Penthouse exceptionnel avec terrasse privée et au coeur de Laval
Vivez l'élégance urbaine dans ce penthouse de dernier étage qui marie parfaitement design moderne et confort au quotidien. Inondée de lumière naturelle, cette unité spacieuse offre deux grandes chambres et deux salles de bain raffinées, dont une attenante à la chambre principale. La cuisine, entièrement rénovée en 2023, allie style et fonctionnalité, accompagnée de finitions haut de gamme : planchers contemporains, luminaires design et salles de bain inspirées des spas. À l'extérieur, la plus grande terrasse privée du bâtiment vous attend, intime avec de la place pour un spa vous attend--l'endroit idéal pour relaxer ou recevoir sous les étoiles. Deux stationnements sont inclus : un intérieur et un extérieur. Situé à quelques minutes de l'autoroute 19 et du boulevard Saint-Martin, et à seulement 10 minutes du Carrefour Laval, cet espace de vie unique allie parfaitement luxe et accessibilité. Clé en main, prêt à emménager. -Deux(2): Chambres/Salle de bains/Stationnements/Rangements -Walk-in -Plafonds 9 pieds -Plancher en epoxy -Unité de coin -Revenu de 27 600$/an ou 2300$/mois.
Exclus : Spa, réfrigérateur.
Emplacement
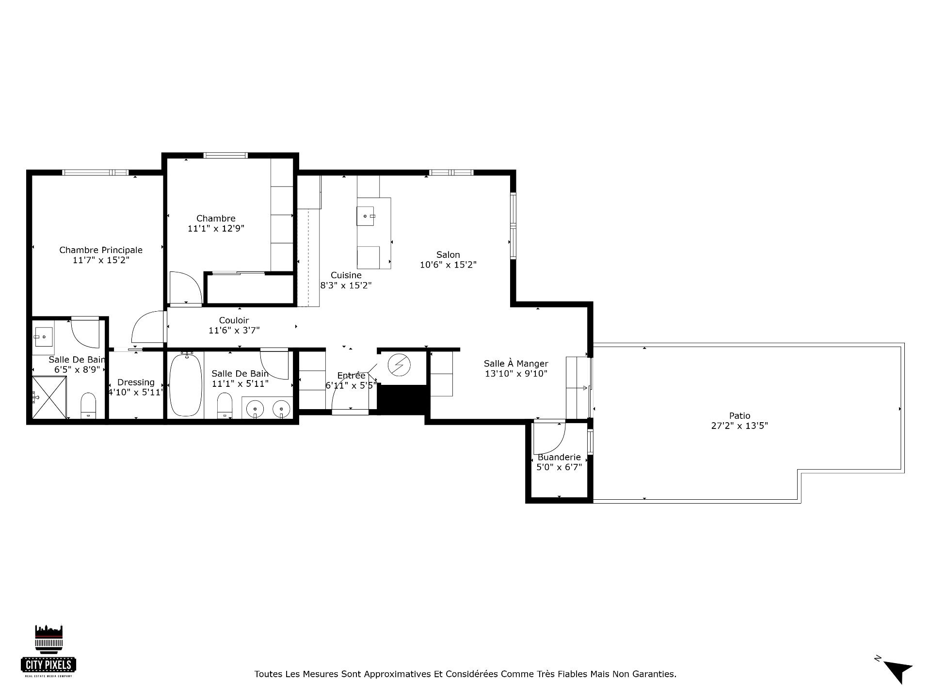
Détails des pièces
| Chambre | Dimensions | Niveau | Revêtement |
|---|---|---|---|
| Hall d'entrée | 6.11 x 5.5 P | AU | Autre |
| Cuisine | 8.3 x 15.2 P | AU | Autre |
| Salon | 10.6 x 15.2 P | AU | Autre |
| Salle à manger | 13.10 x 9.10 P | AU | Autre |
| Salle de lavage | 5.0 x 6.7 P | AU | Autre |
| Salle de bains | 11.1 x 5.11 P | AU | Céramique |
| Chambre à coucher | 11.1 x 12.9 P | AU | Bois |
| Chambre à coucher principale | 11.7 x 15.2 P | AU | Autre |
| Salle de bains | 6.5 x 8.9 P | AU | Autre |
| Penderie (Walk-in) | 4.10 x 5.11 P | AU | Autre |
Caractéristiques
| Stationnement cadastré (inclus dans le prix) | Allée, Garage |
|---|---|
| Restrictions/Permissions | Animaux permis |
| Facilité d'accès | Ascenseur |
| Allée | Asphalte |
| Salle de bains/salle d'eau | Attenante à la chambre principale, Douche indépendante |
| Stationnement | Au garage, Extérieur |
| Particularités | Aucun voisin à l'arrière |
| Proximité | Autoroute/Voie rapide, Cegep, École primaire, École secondaire, Garderie/CPE, Golf, Hôpital, Parc-espace vert, Piste cyclable, Sentier de motoneige, Transport en commun, Université |
| Revêtements | Brique |
| Garage | Chauffé, Intégré, Simple largeur |
| Équipement disponible | Climatiseur mural, Échangeur d'air, Interphone, Porte de garage électrique, Système d'alarme |
| Services disponibles | Détecteur d'incendie |
| Énergie pour le chauffage | Électricité |
| Type de fenêtre | Manivelle |
| Système d'égouts | Municipal |
| Approvisionnement en eau | Municipalité |
| Aménagement du terrain | Paysager |
| Topographie | Plat |
| Mode de chauffage | Plinthes électriques |
| Zonage | Résidentiel |
Cette inscription est présentée en collaboration avec RE/MAX DYNASTIE