Propiété
Propiété
4740 Rue Jean-Talon E. #360
Appartement | MLS: 18285859
469 900 $
Description
Condo lumineux et propre de à aire ouverte avec 2 chambres et 1 salle de bain au coeur de Saint-Léonard. Parfait pour y vivre ou pour investissement. Situé au Novello, à quelques pas des commerces, cafés, parcs, écoles, épiceries, hôpitaux, garderies et grands axes routiers. Futures stations de métro (ligne bleue) à proximité. Construit en 2009, belle lumière naturelle et cour intérieure paisible. Spacieux et très bien situé!
Inclus : Tous les luminaires, tous les rideaux, hotte de cuisine, chauffe-eau (loué), meuble bar/rangement dans la salle à manger, organisateurs de placard, climatiseur mural.
Exclus : Tous les effets personnels du vendeur, tous les appareils électroménagers, le système de filtration d'eau.
Emplacement
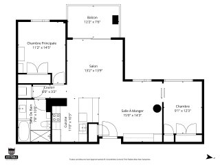
Détails des pièces
| Chambre | Dimensions | Niveau | Revêtement |
|---|---|---|---|
| Salle à manger | 15.0 x 14.3 P | 3ième étage | Bois |
| Chambre à coucher | 9.1 x 12.3 P | 3ième étage | Bois |
| Salon | 13.2 x 13.9 P | 3ième étage | Bois |
| Cuisine | 11.0 x 10.3 P | 3ième étage | Céramique |
| Salle de bains | 7.8 x 10.0 P | 3ième étage | Céramique |
| Chambre à coucher principale | 11.2 x 14.5 P | 3ième étage | Bois |
Caractéristiques
| Restrictions/Permissions | Animaux permis |
|---|---|
| Facilité d'accès | Ascenseur |
| Allée | Asphalte |
| Stationnement | Au garage |
| Proximité | Autoroute/Voie rapide, Cegep, École primaire, École secondaire, Garderie/CPE, Hôpital, Parc-espace vert, Piste cyclable, Transport en commun |
| Équipement disponible | Balcon privé, Climatiseur mural, Interphone, Porte de garage électrique |
| Revêtements | Brique |
| Garage | Chauffé, Intégré, Simple largeur |
| Appareils en location | Chauffe-eau |
| Services disponibles | Chute à déchets, Cour, Détecteur d'incendie, Espace de rangement intérieur, Espace pour bicyclette |
| Type de fenêtre | Coulissante, Oscillo-battant |
| Salle de bains/salle d'eau | Douche indépendante |
| Énergie pour le chauffage | Électricité |
| Stationnement cadastré (inclus dans le prix) | Garage |
| Système d'égouts | Municipal |
| Approvisionnement en eau | Municipalité |
| Aménagement du terrain | Paysager |
| Topographie | Plat |
| Mode de chauffage | Plinthes électriques |
| Armoires | Polyester |
| Fenêtres | PVC |
| Zonage | Résidentiel |
| Vue | Sur la ville |
Cette inscription est présentée en collaboration avec RE/MAX DYNASTIE